Residência Água Limpa – Volta redonda
Esse é um estudo preliminar arquitetônico para ampliação de uma residência simples, com as seguintes premissas:
- Trata-se de uma moradia em terreno compartilhado por uma família. Este projeto é destinado a dois irmãos e um filho com a família.
- No pavimento térreo: um “flat” para o papai e outro para o titio, simples e bem arrumadinho.
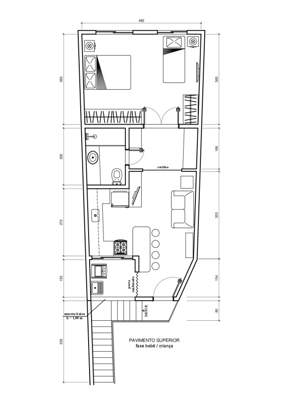
- No pavimento superior, a nova casa, para a qual considerei:
- Moradia para um casal e um filho ainda bem pequeno.
- Uma boa e permanente ventilação, dificultada pela condição de confinamento entre outros imóveis altos. Para atender a esta necessidade, adotei um conceito de integração dos espaços, evitando compartimentar muito. Utilizei boas janelas no quarto, trabalhando com o conjunto de ventilação formado pela porta de entrada, a mureta baixa da área de serviço dando acesso à porta de serviço junto com a janela da cozinha, que deverão permanecer abertas o maior tempo possível. Este formato forma um fluxo de ar pela casa, que não será interrompido pela cortina leve, permeável, adotada para isolar a parte mais íntima da casa, que também ficará aberta durante a maior parte do tempo.
- O banheiro funcionará com ventilação mecânica, um mecanismo simples muito adotado atualmente.
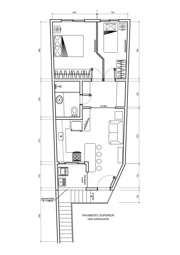
- Envio duas versões para o quarto: a primeira para ser adotada enquanto a criança for pequena, é a melhor opção para a ventilação e aproveitamento dos espaços. Na segunda, que talvez se imponha quando a criança se tornar adolescente, uma simples parede de gesso acartonado fará a divisão, construída sobre o piso, sem quebrar nada, mantendo ainda uma boa ventilação, embora deixe os quartos sensivelmente mais apertados.
- A sala de estar integrada com a cozinha é uma condição necessária para este espaço disponível. Tem um lado bom, que mantém a família junta, mas carrega o inconveniente do cheiro de comida pela casa. Você verá que isso não é um bicho de sete cabeças e conseguirá se adaptar, seguramente.
- A adoção de uma bancada/mesa atende ao papel de apoio para a cozinha e mesa de alimentação. Deverá ser feita na altura de uma mesa e não alta como uma bancada, podendo ser utilizada com bancos baixos ou cadeiras normais, muito mais confortáveis.
- Incluímos armários em todos os cantinhos possíveis, porque nos fazem muita falta no dia-a-dia.
- No hall de circulação, entre o quarto e a sala, em frente ao banheiro, pode-se incluir uma mesa de estudos no armário de fundo, muito útil para o período escolar da criança.
- A TV na sala pode ser fixada na parede que divide o banheiro, com um suporte articulado, que permitirá volta-la para o sofá ou para a mesa de refeições.
- Em princípio eu pensei em adotar uma lavanderia única, no pavimento inferior, comum a todos, mas resolvi dar independência para o casal criando uma pequenina área de serviços. Com dois secadores de roupas suspensos e mais um varal de chão, eu creio que resolverá bem. Este espaço ampliaria a cozinha / estar, mas, neste caso, acho que a privacidade do casal fala mais alto.
- O acesso aos flats do papai e titio será feito confortavelmente por baixo da escada, que está projetada adequadamente, sem riscos de cabeçadas.
- Note que a porta de entrada do quarto, em folha dupla, precisará ser ligeiramente modificada na fase adolescente, para permitir a construção da parede divisória em gesso. Com folha dupla, o vão fica totalmente livre; enquanto com o batente entre as portas, divide-se em duas portas, com resultado muito semelhante. Caso pretenda adotar a divisória no futuro, é interessante já construir com o batente.
Não precisa ser sofisticado, tudo pode ser simples, bastando ficar bem executado e bem arrumado. No mais, é fazer com amor e boa vontade.


